Продава 2-СТАЕН, град София, Дървеница ID 82096496

228 000 €445 929.24 лв.Не се начислява ДДС
Посетена 68 пътиПубликувана в 14:33 на 06 Октомври 2025

Обща информация

Квадратура74 m2
Етаж4-ти

Допълнителна информация

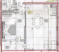
Продавам двустаен апартамент с панорамна гледка към Витоша. Апартаментът е обзаведен, непреходен, находящ се на четвърти/пет етаж. Сградата е ситуирана в непосредствена в близост до бул. Андрей Ляпчев и парк Въртопo. На пешеходно отстояние от Метростанцията Младост 1, пазара Младост и Супермаркет Lidl. Разпределението е: входно антре, хол с кухненски бокс и трапезария, една спалня, баня с тоалетна и балкон, застроена площ 64, 20 кв. Апартаментът се предлага напълно обзаведен, изключително подходящ за инвестиция.

Особености

Асансьор • Тухла

Страница на обявата

Споделяне

Преглeд на обявите по населени места: