Агенция
РЕВОЛЮЦИЯ НЕДВИЖИМИ ИМОТИ 2022 град Кърджали Кв. Студен Кладенец, бул. Беломорски 83А, бл. Чайка 1
Брокер
ЕминЛичен телефон: 0897898881
Посетена 147 пътиПубликувана в 13:23 на 26 Ноември 2025
Обща информация
Квадратура61 m2
Етаж2-ри
Допълнителна информация
ИМОТ No: 624
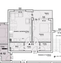
Продава 2-СТАЕН апартамент, ново тухлено строителство - в процес на строеж, в град Кърджали, квартал Възрожденци, в района на Бл. 62. Жилището е с обща площ 61. 44 кв. м. и се състои от антре, баня с тоалетна, склад, всекидневна с кухненски кът, спалня и тераса. Имота е разположен на 2-ри жилищен етаж.
Цена: 58 400 евро.
Особености
Асансьор • Саниран • За ремонт • Тухла
Страница на обявата
Агенция
РЕВОЛЮЦИЯ НЕДВИЖИМИ ИМОТИ 2022 град Кърджали Кв. Студен Кладенец, бул. Беломорски 83А, бл. Чайка 1
Брокер
ЕминЛичен телефон: 0897898881



