Брокер
Обща информация
Допълнителна информация
ПРЕДЛАГА ДВУСТАЕН АПАРТАМЕНТ, КВ. МЛАДОСТ 1 - 76 кв. м
Референтен номер: 33535
Консултант Недвижими Имоти: Денислав Йорданов 088 404 6661
РУДИ КЕЙ предлага за продажба просторен двустаен апартамент с площ от 76. 1 кв. м, разположен на 3-ти етаж от 11 в модерна новострояща се сграда пред Акт 14. Имотът е с изцяло източно изложение, което осигурява светлина и топлина през целия ден. Подходящ както за живеене, така и за инвестиция.
I. Локация
Апартаментът се намира в кв. Младост 1 район с изключително развита инфраструктура, множество магазини, големи хипермаркети, търговски център, удобен градски транспорт и бърз достъп до ключови пътни артерии. Районът е предпочитан както от семейства, така и от млади професионалисти.
II. Основни характеристики
Площ: 76. 1 кв. м
Етаж: 3 от 11
Строителство: тухла
Сграда: новострояща се, пред Акт 14
Въвеждане в експлоатация: 2027 г.
Изложение: изток
Възможност за закупуване на паркомясто
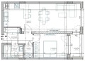
III. Разпределение
Имотът предлага функционално и удобно разпределение:
Дневна с кухненски бокс 29 кв. м
Спалня 12 кв. м
Баня с тоалетна
Килер / склад
Лоджия
Просторно преддверие
Разпределението е подходящо за съвременен стил на живот, осигуряващо комфорт, светлина и практичност.
IV. Състояние
Апартаментът се предлага в степен на завършеност по БДС. Сградата е изпълнявана с висококачествени материали, модерни фасади и общи части от най-ново поколение. Очаква се завършване и въвеждане в експлоатация през 2027 г.
V. Предимства на имота
Светъл апартамент с източно изложение
Просторна дневна с оптимална площ
Ново, модерно строителство
Възможност за закупуване на паркомясто
Подходящ както за живеене, така и за отдаване под наем
Прекрасна локация в Младост 1
Сграда с високи стандарти на изпълнение
Консултант Недвижими Имоти: Денислав Йорданов 088 404 6661
РУДИ КЕЙ Компанията извършва цялостен процес по юридически и технически проверки, съдействие за банково кредитиране и пълно обслужване от първия оглед до финализиране на сделката. Регистрирана по ЗЗЛД гарантирана конфиденциалност и сигурност.


