Брокер
Обща информация
Допълнителна информация
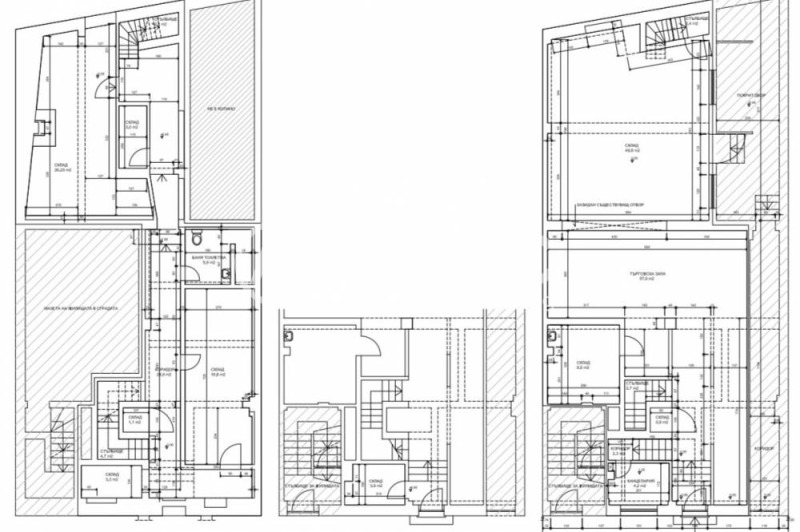
Търговски обект със статут на магазин и застроена площ 230кв. м. , на две нива и следното разпределение : магазин на партерно ниво / 105, 13кв. м. / с прилежащи изба и склад / 64, 32кв. м/ , складово помещение на сутеренния етаж / 56, 33кв. м. / , височина на таваните - 3, 80.
Имотът е с лице на улица, с възможност за товаро - разтоварна дейност .
Подходящ за различен тип бизнес и преустройства, предвид централното местоположение, комуникативна локация и голяма квадратура.
Местоположение :
Централната част на гр. София, в близост до пл. Македония, Съдебната палата, Софийски градски съд, всякакви комуникации, търговски обекти, държавни учреждения, заведения за хранене, административни и развлекателни центрове.
Обади се сега и цитирай този код 671169

