Брокер
Обща информация
Допълнителна информация
🔈 БЕЗ КОМИСИОН ДИРЕКТНО ОТ ИНВЕСТИТОР! 🔈 ОФЕРТА: 10968
‣ Модерен комплекс с широк избор от квадратури - От уютни едностайни до просторни многостайни жилища
‣ Изчистена архитектура , панорамни тераси и френски прозорци.
‣ Жилища на партерно ниво, които разполагат с малки дворчета - тип веранди!
‣ Висококачествени строителни материали, положени от високо компетентен екип!
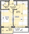
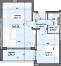
👉 Разпределение:
Двустайните жилища се състоят от: входно антре, дневна с кухненски бокс, спалня, баня с тоалетна, тераса и/или веранда.
Налични модули:
-71. 12 кв. м. - 74 676 евро;
-61, 75 кв. м - 75 978 евро;
-67. 82 кв. м. - 78 671 евро;
-69. 25 кв. м. - 80 330 евро;
-72. 38 кв. м. - 83 960 евро;
💎 Цени :
980 1190 / кв. м. с възможност за отстъпка :
‣ от 5% при заплащане на 100% от цената до АКТ 14.
‣ от -8% при заплащане на 100% до края на годината.
✔ ️ Степен на завършеност :
● Стени и тавани гипсова бяла мазилка; под циментова замазка;
● Алуминиева дограма с двоен стъклопакет;
● Тераса гранитогрес; стени и тавани фасадна мазилка с монтирани осветителни тела; парапет по детайл;
● Входна врата блиндирана, MDF;
● Електро инсталация изградена с ел. табло, съгласно проект съоръжения с предпазители, дефектно токови защити и електромери, с монтирани ключове и контакти;
● ВиК инсталация до тапи, с монтиран водомер с дистанционно отчитане;
● ОВК изпълнена съгласно проекта, включваща изводи за външни климатични тела, позиционирани на строго определени за целта места, по едно за всеки самостоятелен обект;
● Инсталация за видеодомофон;
● Кабелна инсталация извод за кабелна телевизия и интернет;
● Фасада топлоизолация; цветна мазилка;
Общи части на сградата напълно завършени
- стълбища и площадки под гранитогрес, камък; стени и тавани гипсова мазилка и боя; електроинсталация с ключове и осветителни тела съгласно проект;
- входна врата с контрол на достъп;
- пътнически асансьори електрически;
- пощенски кутии;
🚗 Паркиране :
Възможност за закупуване на подземни и надземни паркоместа и партерни и подземни гаражи.
📅 Срокове на изпълнение :
Очаква се откриване на строителната площадка. Пусков срок 36 месеца от откриване на строителната площадка.
📍 Локация:
В непосредствена близост В близост до р-т 'Мавруда', Mall Plaza, хотел 'SPS', МЕТРО, училища, автобусни спирки, хранителни магазини и други удобни за Вас места!
➡ ️ ГОЛД ИМОТИ Ви предлага да се възползвате от професионално кредитно посредничество чрез Credit Center при ипотека, потребителски кредит и рефинансиране!
-УСЛУГАТА Е ИЗЦЯЛО БЕЗПЛАТНА!
-ИЗГОТВЯНЕ НА НЯКОЛКО ОФЕРТИ ОТ ВОДЕЩИ БАНКИ!
-НАЙ-ИЗГОДНИ УСЛОВИЯ СПРЯМО ВАШИЯТ ПРОФИЛ!
-НЕ Е НЕОБХОДИМО ДА СЕ РАЗКАРВАТЕ ВЪВ ВСЕКИ КЛОН НА РАЗЛИЧНИ БАНКИ!
➡ ️ Още атрактивни и актуални оферти може да разгледате на нашият сайт: www.goldhome.bg
📞 За повече информация и при интерес за оглед, моля свържете се с нас.






