Продава 2-СТАЕН, град Пловдив, Христо Смирненски ID 83790437

102 950 €201 352.70 лв.Цената е с включено ДДС

Агенция

ЕЙЧ ЕЙЧ ПРОПЪРТИ ЕООД, град Пловдив
ЕЙЧ ЕЙЧ ПРОПЪРТИ ЕООДград Пловдив бул Мария Луиза 29

Брокер

АнгелЛичен телефон: 0897080399
Посетена 84 пътиПубликувана в 14:17 на 18 Юли 2025

Обща информация

Квадратура71 m2
Етаж5-ти

Допълнителна информация

БЕЗ КОМИСИОН ОТ КУПУВАЧА! ЧУДЕСНА ИНВЕСТИЦИЯ!

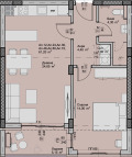
Предлагам за продажба двустаен апартамент с площ от 71 м² , разположен на пети жилищен етаж от общо девет в бъдеща сграда, позиционирана в най-предпочитаната зона на кв. Христо Смирненски в близост до Гребен канал, УМБАЛ Св. Георги , училища, детски градини и големи търговски обекти.

📌 Разпределение на жилището:

Просторна дневна с трапезария и кухненски бокс 25 м²

Спалня 14 м²

Баня с тоалетна 4, 3 м²

Антре 4, 4 м²

Лоджия 5, 15 м²

✅ Югозападно изложение топло и светло жилище с отлична енергийна ефективност
✅ Етаж 5 от 9 удобна и предпочитана позиция в сградата
✅ Възможност за покупка на гараж или паркомясто
✅ Без комисионна от страна на купувача
✅ Подходящ за закупуване с банково финансиране

🏗 ️ Сградата е пред разрешение за строеж, с планирано завършване и Акт 16 през 2028 г.
🔨 Изпълнява се от доказан строител с десетки успешно завършени обекти в Пловдив, използващ висококачествени материали и съвременни строителни технологии

💼 Имот с отличен потенциал както за собствено ползване, така и за инвестиция с висока доходност

📞 Свържете се с мен за повече информация - 0897 080 399 / Ангел Катушев

Особености

Тухла

Страница на обявата

Агенция

ЕЙЧ ЕЙЧ ПРОПЪРТИ ЕООД, град Пловдив
ЕЙЧ ЕЙЧ ПРОПЪРТИ ЕООДград Пловдив бул Мария Луиза 29

Брокер

АнгелЛичен телефон: 0897080399

Споделяне

Преглeд на обявите по населени места: