Продава 3-СТАЕН, град София, Люлин 6 ID 83880920

171 303 €335 039.55 лв.Цената е с включено ДДС

Агенция

ОВ ЕСТЕЙТ ИНВЕСТМЪНТград София София, жк. Овча Купел, бл.24А
Посетена 96 пътиПубликувана в 07:33 на 16 Октомври 2025

Обща информация

Квадратура100 m2
Етаж4-ти
ГАЗНЕ
ТEЦДА

Допълнителна информация

БЕЗ КОМИСИОННА ОТ КУПУВАЧА.
ИНВЕСТИТОР С МНОЖЕСТВО ЗАВЪРШЕНИ ПРОЕКТИ.
ПРОДАЖБА НА ГОЛЯМ ЮЖЕН ТРИСТАЕН АПАРТАМЕНТ:
РЗП: 118, 14 кв. м
ЗП: 100, 50 кв. м
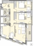
Разпределение:
Дневна с трапезария- 30, 35 кв. м
Спалня - 14, 35 кв. м
Спална- 13, 82 кв. м
Баня- 4, 90 кв. м
Баня- 4, 49
Антре- 10, 61 кв. м
Тераса- 6, 25 кв. м
Изложение - ЮГ
НАЛИЧНИ ГАРАЖИ И ПАРКОМЕСТА с цени от 16 000 до 39 000 евро.
НАЛИЧНИ ДВУСТАЙНИ И ТРИСТАЙНИ АПАРТАМЕНТИ.
ЗА ПРОЕКТА:
📣 Нов проект Люлин 🌟 Цени от 90, 174 евро.
🏡 Комфортни апартаменти в модерен, многофункционален комплекс на входа на Западен Парк и в близост до Кауфланд в жк. Люлин 6 м. р.
БЕЗ КОМИСИОНА ОТ КУПУВАЧА
🏡 Спокойна градска среда, изобилие от зеленина и удобни транспортни връзки с всички важни точки в столицата.
👇 Повече за сградата:
▪ Многофамилна жилищна сграда с магазини, офис площи и надземни гаражи;
ЕТАП- ПЪРВА ПЛОЧА
▪ Планирано завършване на проекта - средата на 2026 г;
▪ Сградата включва 42 апартамента, гаражи, магазини, офис, подземни и надземни паркоместа;
▪ Близо до бул. 'д-р Петър Дертлиев' и само на десет минути с кола от Околовръстен път;
▪ В района има вериги хранителни магазини, детски градини и училища, фитнес и спортни съоръжения и Западен парк.
▪ Избор от комфортни двустайни, тристайни апартаменти и търговски помещения;
▪ Апартаментите се издават по БДС, с поставени ключове и контакти и висок клас входна блиндирана врата;
▪ Тераси със стъклени прегради и богато озеленяване зоната около сградата;
▪ Строителство с висок клас материали с хидро-бетон и външна изолаци;
▪ Отопление на ТЕЦ;
▪ Алуминиева дограма с троен стъклопакет;
▪ Високоскоростни асансьор;
▪ Съдействие при финансиране с банков кредит чрез лицензиран кредитен консултант.
За повече информация и огледи-0899046844- Десислава Янчева.

Особености

В строеж • Тухла

Страница на обявата

Агенция

ОВ ЕСТЕЙТ ИНВЕСТМЪНТград София София, жк. Овча Купел, бл.24А

Споделяне

Преглeд на обявите по населени места: