Брокер
Обща информация
Допълнителна информация
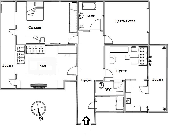
TОП ОФЕРТА !!! НАПЪЛНО ОБЗАВЕДЕН !!! ГОТОВ ЗА НАНАСЯНЕ !!! СВОБОДНО ПАРКИРАНЕ !!! Матекс имоти и брокер Петя Касабова предлагат за свои клиенти тристаен напълно обзаведен апартамент. Състои се от: коридор, просторна и слънчева всекидневна с кухненски бокс с тераса, хол на юг с тераса, спалня, баня, тоалет и килер-дрешник. Към имота се предлага избено помещение. На жилището е направен основен ремонт!!! Има направена хидроизолация на покрива. Микрорайонът е доста благоустроен, разполага с големи и малки магазини, училище, детска градина и ясла, места за отдих и всичко необходимо за комфортен живот. Имотът е подходящ за банков ипотечен кредит! За контакт и огледи: Петя Касабова 0878 615405 или 0888 426491. Моля цитирайте следния код на офертата: VN 4982

