Брокер
Обща информация
Допълнителна информация
Титан Пропъртис - офис бул. България има удоволствието да Ви представи двустаен апартамент в нова , модерна сграда и в затворен комплекс в ж. к. Сердика - комуникативно място, в близост до спирки на градски транспорт, детски градини, училище, магазини и супермаркети и други удобства.
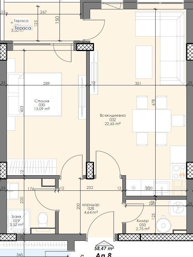
Апартаментът е разположен на втори жилищен етаж от седемнадесет етажа. Имотът разполага с площ от 80 кв. м. , от които 60 кв. м. - застроена площ. Разпределението както следва е: коридор, дневна с кухненски бокс, спалня, килер и тераса. Изложението е запад/ юг. Отоплението е на ток. Жилището се предлага на шпакловка и замазка, предоставяйки възможност за персонализация на интериора. Предоставя идеалната възможност за новите собственици да създадат своя уютен и стилен дом в един от най-желаните райони на градa. За ваше улеснение прилагаме и архитектурен проект. Сградата е на етап Акт 14 , очаква се да бъде въведена в експлоатация през 2027г.
За повече информация или оглед на това и други предложения, моля, свържете се с нас на посочения телефон. Реф. Номер 2093317


