Продава 2-СТАЕН, град Пловдив, Христо Смирненски ID 85558725

112 114 €219 275.92 лв.Цената е с включено ДДС

Агенция

ЕЙЧ ЕЙЧ ПРОПЪРТИ ЕООД, град Пловдив
ЕЙЧ ЕЙЧ ПРОПЪРТИ ЕООДград Пловдив бул Мария Луиза 29

Брокер

Симеон Личен телефон: 0896345025
Посетена 85 пътиПубликувана в 16:51 на 22 Юни 2025

Обща информация

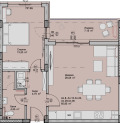
Квадратура64 m2
Етаж2-ри

Допълнителна информация

🚀 ОТ ИНВЕСТИТОР БЕЗ КОМИСИОНА!

✨ Най-висок клас строителство в малка семейна сграда! Този просторен двустаен апартамент с южно изложение е идеален за тези, които търсят слънчеви и уютни жилища в модерна и спокойна обстановка. Разположен в предпочитан квартал, този имот предлага комфорт и енергийна ефективност на високо ниво.

🏡 Апартаментът предлага:

🛋 Просторна дневна с кухненски бокс идеално за релаксация и социализиране, с големи прозорци, които позволяват на слънцето да влиза през целия ден

🛏 Спалня уютно и тихо място за почивка с много светлина

🛁 Баня с тоалетна висококачествени довършителни работи с внимание към детайлите

🌞 Тераса с южно изложение идеално място за отдих и наслада от слънцето през целия ден

🌟 НАЙ-ВИСОК КЛАС СТРОИТЕЛСТВО:

🧱 Тухла Винербергер най-доброто за звуко- и топлоизолация

🪟 7-камерна дограма с троен стъклопакет оптимална енергийна ефективност и шумоизолация

🌿 Изолация с каменна вата устойчивост на всякакви климатични условия

🏗 Окачена фасада за естетика и защита на сградата

📍 Локация: Отлична, в сърцето на кв. Христо Смирненски, с лесен достъп до парк, училища, болници и магазини.

📅 Срок на завършване: 2028 г.
💰 Гъвкави условия на плащане адаптирани към нуждите на клиента
🚗 Възможност за закупуване на паркоместа и гаражи
🏦 Подходящ за покупка с ипотечен кредит съдействие без допълнителни такси

✅ Директна продажба от инвеститор без комисионна! Имот 6545

Особености

Асансьор • Видео наблюдение • Контрол на достъпа • Охрана • Саниран • Тухла

Страница на обявата

Агенция

ЕЙЧ ЕЙЧ ПРОПЪРТИ ЕООД, град Пловдив
ЕЙЧ ЕЙЧ ПРОПЪРТИ ЕООДград Пловдив бул Мария Луиза 29

Брокер

Симеон Личен телефон: 0896345025

Споделяне

Преглeд на обявите по населени места: