Посетена 20 пътиПубликувана в 11:15 на 26 Септември 2025
Обща информация
Квадратура74 m2
Допълнителна информация
Цена: 170 000
, ,Имоти Си, , продават 2-стаен апартамент с двор в кв. Витоша-ВЕЦ Симеононово,
гр. София , пред АКТ 14
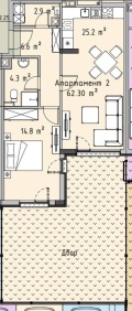
Предлагаме двустаен партерен апартамент с площ 73. 19 кв. м и прилежащ двор 44 кв. м, разположен в новострояща се модерна сграда в престижния квартал Витоша.
Апартаментът е с удобно разпределение и се състои от:
светла всекидневна с кухненски бокс;
спалня;
санитарен възел;
складово помещение;
уютен ограден двор с гледка към Витоша.
Строителството е изпълнено с материали от най-висок клас 7-камерна дограма, външна топлоизолация, противоалергични и антиастматични мазилки и шпакловки.
Възможност за финансиране и с банка !!!
Гъвкави схеми за разсрочено плащане !!!
0898 901010
Особености
Тухла




