Обща информация
Допълнителна информация
Директно от строителя - без комисионна за купувача!
Двуетажна нискоенергийна жилищна сграда с разгърната застроена площ от 261. 64 кв. м, в луксозен мини комплекс от три еднофамилни сгради в Лозен София (Къща 2).
Сградата се състои от:
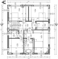
на първо ниво дневна с кухненски бокс и трапезария, санитарен възел (баня с тоалетна), техническо помещение, входно антре, стълбище, гараж за два автомобила и веранда.
на второ ниво три спални, два санитарни възела (баня с тоалетна), кабинет, коридор, мокро/перално помещение и стълбище.
Модерна и функционално разпределена къща отличаваща се с просторни и удобни помещения, високо ниво на материалите и строителното изпълнение, пълна инфраструктурна осигуреност.
Премиум локация! Комплексът се намира на равен и слънчев терен в центъра на Долни Лозен. Мястото е тихо и приятно, като същевременно е на пешеходно разстояние до градски транспорт, търговски обекти, аптека, детска градина и други.
Към момента комплексът е с издадено разрешение за строеж - очаквано завършване на строителството - Ноември 2026 г.
Гъвкава схема на плащане съобразена с хода на строителството.
За повече информация и огледи, не се колебайте да се свържете с нас.
За още предложения за нови, еднофамилни къщи в района на София следете официалният ни сайт msv(dot)bg.
Directly from the developer - zero commission for the buyer!
Two-story, low-energy house with a total built area of 261. 64 sq. m in a luxurious mini residential complex of three single-family homes situated in Lozen Sofia.
The building consists of:
- at the ground level living room with a dedicated kitchen and dining area, bathroom with toilet, technical room, entrance hall, staircase, garage for two cars and a veranda
- at the upper level three bedrooms, two bathrooms, a study, hallway, washing compartment and staircase.
A modern, functionally designed home with spacious and convenient layout, high building quality and complete infrastructure available.
Excellent location! The housing development is situated on a level, sunny plot in the center of Lozen. The area is comfortable and quiet, at the same time within a walking distance to public transport, grocery stores, pharmacies, kinder garden, etc.
At the current stage the housing complex has a valid permission to build with full completion planned for November 2026.
We can provide a very flexible payment scheme corresponding to construction progress.
For further details, please do not hesitate to contact us.
For more offers for newly-built houses in the Sofia area, please refer to our website - msv(dot)bg









