Продава 3-СТАЕН, град Бургас, Меден рудник - зона В ID 86408659
Брокер
Обща информация
Допълнителна информация
За повече информация обадете ни се на тел: 0882 817 497 или 056 828 449 и цитирайте референтния номер на имота: BS 89903.
Отговорен брокер: Павел Раванов
Без комисионна от купувача!
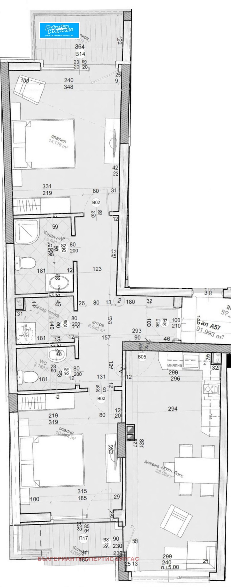
Апартамент A57 , обща площ 103. 83 кв. м. (нетна площ 87. 76 кв. м. + общи части 16. 08 кв. м. ).
Представяме Ви нов жилищен проект, разположен в динамично развиващия се ж. к. Меден рудник в Бургас, в района на бившия битак. Локацията е изключително комуникативна, с директен достъп до основни транспортни артерии и удобства от първа необходимост.
Проектът се намира на централен булевард, в непосредствена близост до терминал на градския транспорт, хипермаркет, училище и детска градина всичко необходимо за комфортен и практичен начин на живот.
Сградата е проектирана на девет етажа с два входа и съчетава жилищни и търговски функции, създавайки модерна градска среда.
Удобства в комплекса
Партерни магазини
Възможност за закупуване на подземни и надземни гаражи и паркоместа
Функционални двустайни и тристайни апартаменти
Отлична локация с лесен достъп
Жилищата се предлагат по БДС стандарт (на тапа), което позволява на бъдещите собственици да реализират интериора според своя вкус и стил.
Планиран старт на строителството - 01. 06. 2026. Срокът за изпълнение на проекта е 36 месеца от старта на строителството.
Схема на плащане
10% при подписване на предварителен договор
30% при достигнато строително ниво и линия
30% при изпълнена плоча на съответния етаж
20% при издаване на Акт 14
5% при издаване на Акт 15
5% при издаване на Акт 16
Предимства на имота
Отлична градска локация
Разнообразие от апартаменти
Подходящ както за живеене, така и за инвестиция
Гъвкава схема на плащане
Възможност за покупка на гараж или паркомясто
Този проект е отличен избор за клиенти, които търсят ново строителство с добра локация, функционални жилища и сигурна инвестиция в един от най-развитите райони на Бургас.
Оглед на имота
Можем да организираме оглед на имота спрямо нашия график и възможностите за достъп до него. Заявете вашето желание за оглед, като се свържете с отговорния за офертата брокер по имейл или телефон.
Резервация на имота
Имотът може да бъде резервиран и свален от продажба със заплащане на депозит, след което се прекратява провеждането на огледи с други купувачи и започва подготовка на документите за сключване на предварителен и окончателен договор. Свържете се с отговорния брокер за подробна информация относно процедурата . ..








