Посетена 3 пътиПубликувана в 17:43 на 31 Октомври 2025
Обща информация
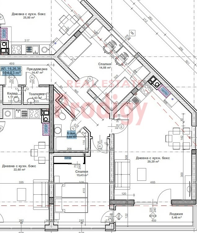
Квадратура118 m2
Етаж2-ри
ТEЦДА
Допълнителна информация
Предлагаме тристаен апартамент в новострояща се сграда. В близост метростанция, търговски обекти, удобни комуникационни връзки. Жилището е със застроена площ 104. 83 кв. м и се състои от коридор, дневна с кухненска част, две самостоятелни стаи, баня с тоалетна, тоалетна, гардеробна и тераса. Предава на шпакловка и замазка. Работим с комисиона, невключена в цената, при осъществяване на сделка за обекта. Преди оглед се подписва посреднически договор. Референтен номер 1478907
Особености
Тухла

