Брокер
Обща информация
Допълнителна информация
LUXIMMO FINEST ESTATES: www.luximmo.bg
Представяме двустаен апартамент ново строителство в центъра на Пловдив - кв. ' Каменица 1' . Отлично местоположение на пешеходно разстояние от Стария град, Капана и забележителностите на града. Интелигентен избор за всеки, който търси дом или имот с отлична локация, удобна инфраструктура.
Сградата е в процес на строеж, a Акт 16 e предвиден през 2027 г.
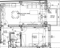
Имотът с обща площ от 65. 78 кв. м се намира на 4-ти етаж от 5, с изложение изток и има следното разпределение:
антре - 4. 32 кв. м;
всекидневна с кухненски бокс - 21. 10 кв. м;
спалня - 11. 88 кв. м;
баня и тоалетна - 2. 97 кв. м;
тераса - 3. 31 кв. м.
склад - 3. 05 кв. м.
Предимства:
топ локация в центъра на града;
модерна сграда;
отлична възможност за инвестиция или собствен дом.
Жилището се предава в степен на завършеност по БДС, спрямо най-добрия строителен стандарт и характеристики. Външният вид на сградата е с елегантен архитектурен облик, отговарящ на изискванията за съвременен дизайн и функционалност, с асансьор и контролиран достъп.
Технически характеристики:
ефективна топлоизолация с плоскости от XPS и каменна вата с дебелина от 10 см;
външна облицовка от широкоформатен гранитогрес и водоотблъскваща мазилка;
машинно шпакловани стени и тавани - гипсова мазилка;
подове - шумоизолация и циментова уравнителна замазка;
Ел. и ВиК инсталации;
окабеляване;
фасадна дограма висок клас луксозна алуминиева дограма с прекъснат термомост /марка Reynaers Aluminiumс или Schü co /, с 2 двукамерен стъклопакет с 3 три стъкла;
тераси под - гранитогрес, парапет по проект;
външна врата монтирана метална /блиндирана/ входна врата с брава;
висок клас луксозен безшумен пътнически асансьор марка Орона.
За повече информация, моля свържете се с нас.
За повече информация свържете се с нас и цитирайте референтния номер на имота. Моля, кажете, че сте видeли обявата в този сайт.
Референтен номер: PLV-136545
Тел: 0889 003 187, 032 331 006
Отговорен брокер:Ивайло Бозаджиев




