Продава 2-СТАЕН, град Пловдив, Христо Смирненски ID 87035899
Брокер
Обща информация
Допълнителна информация
ОТ ИНВЕСТИТОР БЕЗ КОМИСИОННА!
✨ Двустаен апартамент до Гребната база качество, стил и удобство в синхрон.
🏡 Сграда, отличаваща се с изчистена архитектурна линия, внимание към детайла и качествени материали, които създават усещане за съвременен градски лукс без излишна претенциозност.
Състои се от ограничен брой жилища, разпределени в нискоетажна структура, което допринася за усещането за уединение и уют.
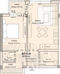
Апартаментът е с чиста площ от 58, 74 кв. м, източно изложение, разположен на 3 от общо 4 етажа, с функционално и комфортно разпределение:
входно антре,
светла дневна с кухненски бокс,
самостоятелна спалня,
баня с тоалетна,
практично складово помещение,
тераса.
🌿 Местоположението комбинира зелената тишина на природата с удобствата на града идеален избор за динамични хора, които търсят баланс.
Подходящ както за собствен дом, така и за дългосрочна инвестиция.
📅 Срок на завършване: 18 месеца
💰 Гъвкава схема на плащане
🚗 Възможност за закупуване на паркоместа и гаражи
✅ Директна продажба от инвеститор без комисионна
🏦 Подходящ за покупка с банково финансиране безплатно съдействие при най-добри условия
Оферта 6874





