Обща информация
Допълнителна информация
При проблеми с обаждане, моля обадете се на: 0892 712 776.
Ул. Ралевица 74, ЕТ. 3. С включен данък, от частно лице.
Към офиса се предлагат и паркоместа в закрит, или открит паркинг на сградата на стойност 80 Евро и 45 Евро на месец с отваряне чрез дистанционно и с мобилен телефон. Към офиса има общо до 8 паркоместа в паркинга.
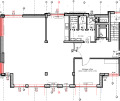
Предлагаме офис под наем на ЕТ. 3 в качествена и тиха бизнес сграда в ж. к. Манастирски ливади, гр. София. Предлага се офис от 136 кв. м. с опция за паркоместа в закрит и открит паркинг към сградата. Голямо помещение тип open space (с възможност за индивидуално оформяне) с отделен кабинет за управител/manager. В офиса има изградено окабеляване с Интернет кабели до всяко работно място (FTP и оптичен Интернет). С опция (по желание) за наемане на допълнителна стая 16 кв. м. за срещи, интервюта за работа; място за хранене с 1-2 маси; склад, архив на документи, техника. И опция за добавяне на преградна стена с врата за малък склад, networking склад с rack 19' за network оборудване, или стая за пушене с прозорец. Сградата се намира в близост до бул. България в район с модерни бизнес сгради. Има бърз достъп до центъра през бул. България, също така е в близост до спирка на трамвай номер 7. Офис сградата разполага с голям озеленен двор и паркоместа за работещите в сградата. Подовете на всички етажи имат шумоизолация, водно подово отопление, охлаждане през лятото и гранитогрес за бързо и лесно почистване. В съчетание с високо-качествената алуминиева дограма с троен стъклопакет и 10см. външна топлоизолация, сградата отговаря на най-високите изисквания за шумо и топлоизолация, допринасящи за комфорт и ниски разходи за климатизация. В сградата има СОТ охрана във входа с автоматизация на вратите, видеонаблюдение и възможност за СОТ аларма в офиса. Разполага с подземни паркоместа по 80 Eвро и открити паркоместа по 45 Eвро на месец. Офиса се предлага без обзавеждане. Цената е 10 Евро на кв. метър /отдава се от частно лице, ДДС не е дължим/. Месечната такса за поддръжка на сградата е 1. 3 евро на кв. м. За повече информация за този имот, моля обадете се на телефон 0892 712 776 (на този номер няма Viber, моля обадете се). Адреса е на ул. Ралевица 74. Огледи може да се правят всеки ден. Офиса се освободи на 01. 01. 2026 от предишните наематели (централа на акционерно дружество), бяха наематели 8 години. Всички други офиси в сградата са отдадени под наем дългосрочно, в сградата няма шум от ремонти, всичко е напълно завършено.
We offer office space for rent 136 sq. m. on the 3rd floor in a quality and quiet business building in Sofia, Manastirski Livadi district with convenient private parking options and automated gates. The office has a separate private manager room and a bigger open-space office with possibility for customization to meet different business needs. The office has Internet cables to each work desк (FTP and fiber optic Internet). The building is located close to Bulgaria blvd. in an area with modern office buildings. There is quick access to the center via Bulgaria blvd. It is also close to tram No7 stop. The office building includes a large landscaped outdoor space, parking, outdoor smoking area. Floors of all levels have sound insulation, under-floor heating and cooling during summer with solid granite tiles for fast and easy cleaning. In combination with high-quality triple-pane windows with aluminum frames and 10 cm. external heat-insulation, the building meets the highest requirements for noise and heat insulation, providing comfort and lower costs for heating and air conditioning. The building has a convenient access control system, security alarm in the entrance, security cameras and the option for SOT security alarm inside the office. It has underground parking spaces for 80 Euro and outdoor parking spaces for 45 Euro per month. The office is offered unfurnished. The price is 10 Euro per square meter (private owner, no VAT required). The monthly fee for the building maintenance is 1. 3 euro per m2. For more information about this property, please contact us by phone 0896 834 818, I speak fluent English (there is no Viber, please call). The address is Ralevitsa street 74. Call us for a viewing. The office is available from 01. 01. 2026. The previous renter was a publicly traded company, on the Bulgarian exchange, they stayed 8+ years. All other offices in the building are rented out long-term, there is no construction noise in the building, everything is fully completed.

















