Брокер
Обща информация
Допълнителна информация
( Оферта - 8904 ) Нов апартамент с акт 16! Страхотна панорамна тераса! Среден етаж! АКРОНА ИМОТИ представя ДВУСТАЕН апартамент, ситуиран на комуникативно място, в близост до Гребна база! Изключително подходящ както за лично ползване, така и за отдаване под наем!
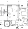
Етаж - 3 от 4!
Квадратура - 62 кв. м. !
Изложение - Запад!
Разпределение - Светъл просторен хол, с кухненски кът, отделна спалня, баня с тоалетна, килер, прекрасна тераса, функционално входно антре!
Състояние - Апартаментът се предлага на шпакловка и замазка! Имате възможност да го обзаведете изцяло по Ваш избор и предпочитание!
Паркинг - възможност за закупуване на паркомясто!
За повече информация или оглед се обадете на посочените телефони!
Работейки с нас, Вие получавате банково кредитиране при преференциални условия и цялостна юридическа проверка на имотите, които предлагаме.
Ние се стараем да осигурим пълна и завършена услуга на клиентите си, поради което си партнираме с един от водещите фирми в интериорния дизайн, ремонтните и транспортни дейности, почистването и обзавеждането, както и доказали се архитекти, геодезисти и конструктори, заедно с които можем да превърнем всяка ваша идея в реалност! Разгледайте пълния ни списък от оферти на www.acronaimoti.bg






