Обща информация
Допълнителна информация
Компания Х представя на Вашето внимание двустаен апартамент в Хоризонт.
МЕСТОПОЛОЖЕНИЕ: Хоризонт Районът се отличава с модерно застрояване, спокойна жилищна среда и отлично планирана инфраструктура, което го прави изключително подходящ както за живеене, така и за инвестиция.
СТРОИТЕЛСТВО: Апартаментът е разположен на девети етаж, тухла.
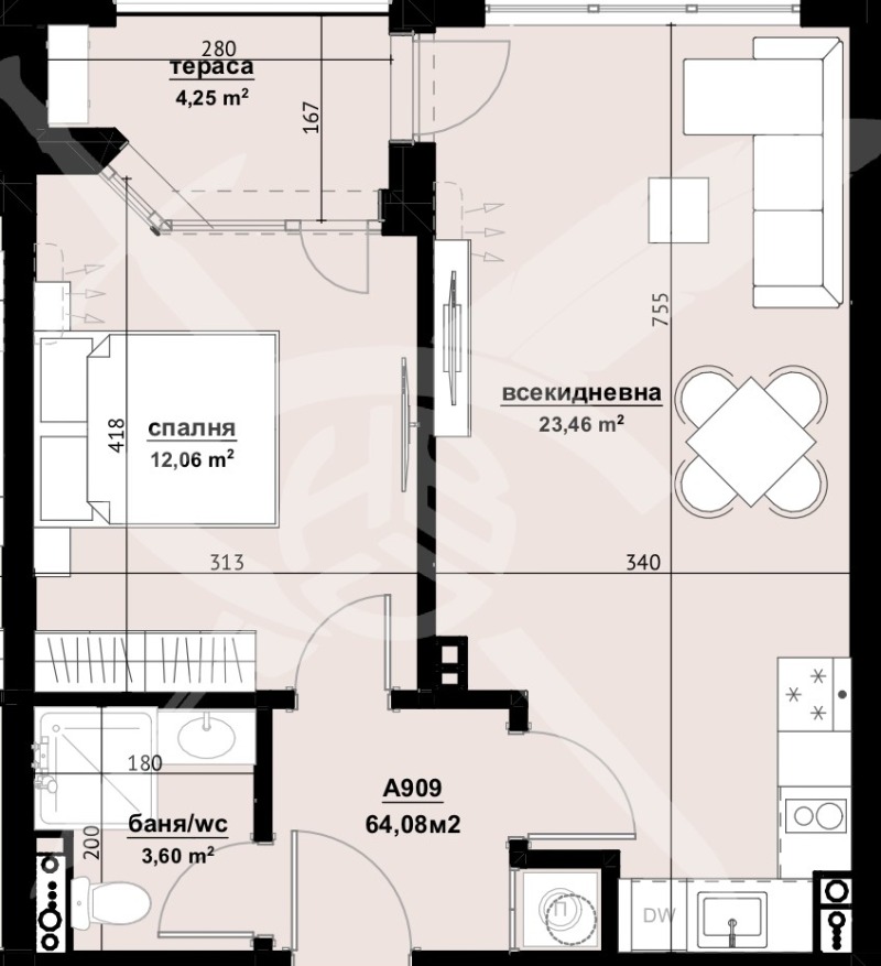
РАЗПРЕДЕЛЕНИЕ: Жилището разполага с площ 64, 08 кв. м. , състои се от хол с кухня, спалня и баня с тоалетна.
СЪСТОЯНИЕ: Имотът се предлага както на тапа, така и на степен до ключ, което Ви дава възможността да го устоите по Ваш вкус и да го превърнете в мечтания дом!
Заповядайте да Ви го покажем. Използвайки нашите услуги Вие ще превърнете закупуването на новия си дом в едно приятно изживяване, ще получите персонален консултант, съдействие при кандидатстване за кредит от всички банки в България, интериорни дизайнери и екип, който да се погрижи за нужните документи по Вашата сделка. На Ваше разположение сме всеки ден, от понеделник до неделя от 09:00 до 20:00ч. Възползвайте се от безплатна консултация в наш офис, където ще ви спестим време и ще ви запознаем с всички актуални имоти в България, отговарящи на Вашето търсене. Свържете се с нас и цитирайте кода към имота: 1246-35336

