Брокер
Обща информация
Допълнителна информация
Референтен код:SSSSH02(моля, споменете този код, когато се свързвате).
Ние от MyVision Real Estate сме горди да ви предложим двустайни и тристайни апартаменти.
Жилищният комплекс включва сутеренно и полуподземно нива за паркиране, както и
гаражи на партера. Между двете сгради се намира голям озеленен двор с ограничен
достъп.
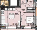
Проектирани са предимно двустайни и тристайни апартаменти, като за всяко жилище
се предвижда минимум един балкон.
Жилищата са проектирани според всички изисквания за удобство и комфорт на
обитаване, дневните стаи са предвидени с голямо остъкление, което дава
повече светлина в стаята.
Широките пространства на дневните стаи дават възможност за различно
разместване на меблировката, според индивидуалните желания на всеки
купувач.
Спалните са проектирани с минимална широчина от 3-3, 10 метра.
Предвижда се сградата да се отоплява чрез ТЕЦ, като за всеки апартамент е
предвидена възможност и пространство за монтаж на климатик и бойлер.
Цени от 2200 евро без ДДС.
При Интерес: Саша Стойчева-0888234060
Website: Myvision-bg. eu
e-mail: sasha@myvision-bg. eu

