Брокер
ТеодораЛичен телефон: 0882 300 400
Посетена 82 пътиПубликувана в 23:01 на 06 Февруари 2026
Обща информация
Квадратура184 m2
Допълнителна информация
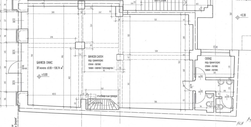
Юник Естейтс предлага на вашето внимание чудесен магазин/банков офис в красива офис сграда на бул. Дондуков с голямо лице. Близостта му до ул. Раковска го прави изключително комуникативно място с голям човекопоток. Подходящо е и за друг вид дейност.
Партер- 138 кв. м. голямо помещение, в дъното има склад и две тоалетни
Подземно ниво- 45 кв. м. складови помещения. Цената е без включен ДДС. Ref. ID:28110
Страница на обявата
Брокер
ТеодораЛичен телефон: 0882 300 400




