Продава КЪЩА, град София, с. Бистрица ID 87609664

670 000 €1 310 406.10 лв.Цената е с включено ДДС

Агенция

ФОРТЪН АД, град София
ФОРТЪН АДград София София, бул. Цариградско шосе 115Г

Брокер

МираЛичен телефон: +359882344673
Посетена 44 пътиПубликувана в 11:37 на 02 Октомври 2025

Обща информация

Квадратура196 m2

Допълнителна информация

Открийте вашия дом в сърцето на природата Комплекс от 6 редови къщи в Бистрица пред АКТ 16

Forton Homes представя уютен дом сред величествени планини и зеленина, където всяка сутрин започва с чист планински въздух и панорамни гледки.

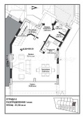
Предлагаме къща изградена на 3 нива с площ от 196. 10 кв. м. и дворно простанство от 365. 68 кв. м.
Имотът е със следното разпределение:
Ниво 1 - антре, дневна, трапезария, кухненски бокс, тоалетна, складово помещение, веранда , две паркоместа
Ниво 2 - антре, три спални, две бани и тераса
Ниво 3 - антре, кабинет/ стая за отдих, тоалетна и тераса

Имотът се предлага със завършени настилки, готови бани, интериорни врати, термопомпа и конвектори за охлаждане включени в ценяата. Изградено е и подово отопление навсякъде.

Къщите са изградени с премиум материали и внимание към всеки детайл, предлагащи максимален комфорт и уют.

Само на 15 минути от центъра на града;
В подножието на планината Витоша;
Красиви панорамни гледки;
Комфортни разределения;
Самостоятелни дворни простанства;
Без такса поддръжка

Изберете вашия дом и открийте перфектния баланс между природа и удобства.

Водещ консултант: Мира Зашева
+359882344673
mira. zasheva@fortonhomes. com

Особености

Тухла

Страница на обявата

Агенция

ФОРТЪН АД, град София
ФОРТЪН АДград София София, бул. Цариградско шосе 115Г

Брокер

МираЛичен телефон: +359882344673

Споделяне

Преглeд на обявите по населени места: