Брокер
Клиентски център АДРЕСЛичен телефон: 0882121454
Посетена 20 пътиПубликувана в 09:45 на 07 Октомври 2025
Обща информация
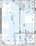
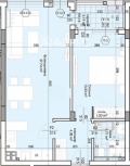
Квадратура72 m2
Етаж8-ми
ГАЗНЕ
ТEЦНЕ
Допълнителна информация
Предлагаме за продажба двустаен, слънчев апартамент със просторна гледка, състои се от входно антре, дневна с кухненски бокс, една спалня, една ераса и баня с тоалетна.
Обади се сега и цитирай този код 670656
Особености
Асансьор • Тухла
Страница на обявата
Брокер
Клиентски център АДРЕСЛичен телефон: 0882121454









