Обща информация
Допълнителна информация
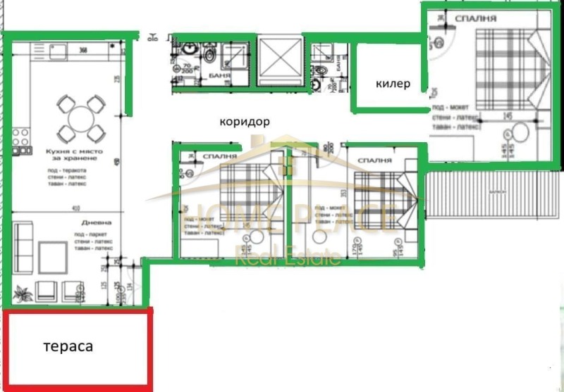
Имоти Home Place Ви предлага за продажба просторен четиристаен апартамент, разположен на висок партер в новострояща се сграда с изцяло южно изложение.
Характеристики на имота:
-Обща площ: 140 кв. м.
-Етаж: висок партер
-Изложение: юг
-Асансьор: да
-Сграда в строеж очаквано завършване януари 2025 г.
-Тип: два двустайни апартамента, които ще бъдат обединени в един просторен четиристаен имот
-Не е преходен
Паркиране:
-Самостоятелен гараж 20 кв. м. / 17 500 евро
-Подземни паркоместа 10 000 евро
-Надземни паркоместа 6 500 евро (12 кв. м. )
Имотът е отличен избор както за семейно жилище, така и за инвестиция с висока възвръщаемост.
Перфектно съчетание между локация, комфорт и функционалност.
За повече информация и оглед:30207
Имоти Home Place Ние работим за Вас!


