Брокер
ДесиславаЛичен телефон: 0877 878 879
Посетена 91 пътиПубликувана в 17:07 на 23 Февруари 2026
Обща информация
Квадратура644 m2
Допълнителна информация
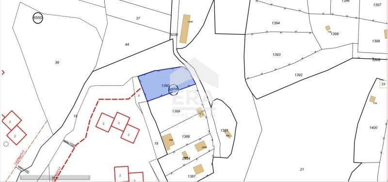
ЕРА Надежда продава парцел в с. Герман в местността Терасите с площ от 644 кв. м.
Урбанизирана територия с параметри за застрояване:
- 25% плътност
- Кинт-0, 8
- Озеленяване -60%
- Кота корниз 8, 5
- до 10м, устройствена зона - Жв
Продава се и съседния парцел с номер 1389 с площ от 848 кв. м, парцел с номер 1391 с площ 509 кв. м.
Оферта 3303365
Особености
За жил.строителство
Страница на обявата
Брокер
ДесиславаЛичен телефон: 0877 878 879


