Продава 3-СТАЕН, град Пловдив, Младежки Хълм ID 87947678
Обща информация
Допълнителна информация
🙏 С всяка сделка ние от Diamond Home помагаме! 💎
Даряваме процент от нашата комисионна на Фондация Вярвай - организация, която подпомага хора, борещи се с рак.
Вярваме, че заедно можем да направим нещо повече от просто бизнес - можем да дадем надежда. ❤ ️
🏠 Представяме Ви тристаен апартамент в развиващ се луксозен жилищен комплекс, в желан район - квартал Младежки Хълм.
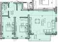
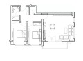
📐 Разпределение: дневна с кух. бокс, 2 спални, баня с wc, склад и тераса.
📍 Локация: в непосредствена близост до факултета по Дентална медицина , парк Младежки хълм и Медицински университет Пловдив
✔ Сграда: характеризира се с привлекателна визия, изключителна архитектура, жилищни помещения с предпочитани изложения и удобни разпределения, луксозни общи части и високо качество на строителство от утвърден строителен изпълнител.
🅿 Паркинг: възможност за закупуване на гаражи и паркоместа!
💎 Нашата мисия е да ви предоставим доверие и обслужване от най-висок клас.
💎 Предлагаме над 1000 имота.
💎 Нашите услуги включват:
- Консултация със старши брокер
- Съдействие при кредитиране
- Договаряне на най-изгодни условия
- Пълна документация и юридическа подкрепа
- Управление на имоти
💎 За информация или оглед се свържете с нас!
ОФЕРТА НОМЕР: 241242


