Продава 2-СТАЕН, град Варна, Владислав Варненчик 1 ID 88063020
Обща информация
Допълнителна информация
Предлагаме за продажба двустаен апартамент с площ от 60 кв. м, разположен на предпоследен етаж в нова тухлена сграда в квартал Владислав Варненчик , гр. Варна. Имотът е покрит изцяло, без външни стени отгоре, което допринася за по-добра топлоизолация и комфорт.
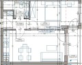
Разпределение: Светла дневна; Спалня; Лоджия с излаз от дневната; Баня с тоалет; Просторно антре.
Апартаментът е с източно изложение, осигуряващо естествена светлина през първата половина на деня. Имотът се намира в сграда с издаден Акт 14, като се очаква разрешение за ползване (Акт 16) до края на годината.
Сградата е разположена в удобен и добре развит район в непосредствена близост до Jumbo, Кауфланд, автобусни спирки, училища и детски градини.
Имотът е подходящ както за лично ползване, така и с инвестиционна цел за отдаване под наем или препродажба след завършване на сградата.
За повече информация и огледи, обадете се и цитирайте код: 128123




