Посетена 6 пътиПубликувана в 11:42 на 30 Март 2026
Обща информация
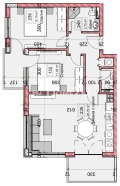
Квадратура94 m2
Етаж9-ти
Допълнителна информация
ОТЛИЧНА ЛОКАЦИЯ!! СРЕДЕН ЕТАЖ!! ВИСОКОКАЧЕСТВЕНО СТРОИТЕЛСТВО!!
Home2U ви представя за продажба тристаен апартамент в нова сграда в кв. Кайсиева Градина! Сградата ще разполага с 4 асансьора, луксозни общи части от гранит, като при строителството ще се използват само висококачествени материали. На пешеходно разстояние от нея се намират: Хипермаркети, Детска Градина, Училища, както и спирка на градския транспорт. Има възможност за покупка и на паркомясто. За повече информация се обадете и цитирайте следния код: 130449
Особености
Тухла





