Брокер
Обща информация
Допълнителна информация
Открийте мястото, където ще се чувствате у дома от първия момент.
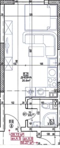
Титан Пропъртис с радост предлага на Вашето внимание едностаен апартамент за продажба в кв. Малинова долина. . Жилището от 33 кв. м. е разположено на 1 ви етаж в нова осеметажна сграда от 2028 г. С източно изложение. Изложението включва входно антре, еднопространствено помещение с кухненски бокс, баня с тоалетна и балкон. Предлага се на шпакловка и замазка и отоплението е на ток.
В близост до имота ще намерите:
- Училище: Детска градина 190 в 'Малинова долина' на 438 метра
- Фризьорски салон: Салон за красота Алегран на 492 метра
- Банкомат: ATM - Банка ДСК на 306 метра
- Аптека: Студентска аптека на 237 метра
- Аптека: Framar Pharmacy 50 на 495 метра
- Автобусна спирка: ЗИМЕН ДВОРЕЦ НА СПОРТА на 316 метра
- Автобусна спирка: СК НА НСА на 271 метра
'С нас, вашето търсене на имот завършва с усмивка. '
За оглед на това и други атрактивни предложения, не се колебайте да ни потърсите на посочения телефон или да ни изпратите данните си чрез формата за запитване на сайта.
Реф. номер: 2099785.





