Посетена 1 пътиПубликувана в 11:35 на 29 Септември 2025
Обща информация
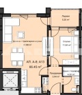
Квадратура74 m2
Етаж2-ри
Допълнителна информация
? Реф. 36853!
Агенция Авеню имоти има удоволствието да ви представи Двустаен апартамент в луксозен нов комплекс
? кв. Остромила, гр. Пловдив
? БЕЗ КОМИСИОННА ОТ КУПУВАЧА
? ЦЕНА директно от инвеститор
? Плащане:
? 20% Предварителен договор
? 70% Акт 15
? 10% Акт 16
? Гарантирана цена до Акт 16
?? Доказан строител с отлична репутация
? ПОДХОДЯЩ ЗА:
? Лично ползване
? Инвестиция с висока възвръщаемост
? Авеню Имоти Ви предлага:
? Професионално кредитно съдействие чрез Credit Center напълно БЕЗПЛАТНО!
Индивидуално изготвени оферти от водещи банки
Без излишни обиколки, без такси, без скрити условия
? Обадете се сега и запазете личен оглед!
? Вашият нов дом не е просто имот това е нов стандарт на живот!
Особености
Тухла






