Брокер
Обща информация
Допълнителна информация
📢 БЕЗ КОМИСИОН- ЦЕНИ ДИРЕКТНО ОТ ИНВЕСТИТОРА ! 📢
ОФЕРТА 11808
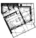
Агенция за недвижими имоти 'ГОЛД ИМОТИ' Ви представя двустаен апартамент в малка сграда, на шест етажа в район Южен.
✅ Разпределение:
Входно антре, всекидневна с кухненски бокс, спалня, баня с тоалетна и покривна тераса.
➢ Разположен на последен шести етаж.
● Предимствата на последния етаж са : по-чист въздух , липса на шум от тропащи съседи и несъмнено по-добра гледка .
● Покривните тераси могат да се превърнат във ВАШИЯ личен кът за отдих и релакс
📍 Степен на завършеност:
Жилищата ще бъдат издадени по БДС: шпакловка и замазка, ел. инсталация до ключ, ВиК до тапа, външна блиндирана врата, висок клас ПВЦ дограма.
🚗 Паркиране :
Възможност за покупка на подземни паркоместа на цена от 14 000
🏗 ️ За строителя :
Инвеститорът е с богат опит в строителството и изпълнението на жилищни сгради на територията на град Пловдив.
📅 Очакван срок за завършване :
Към момента сградата е на етап среда на строеж. Очаква се АКТ 16 - края на 2026 година .
🎯 Локация:
Отлична - поради близостта си до новата пътна връзка Модър - Царевец. В близост се намира търговски комплекс Via Park - хипермаркет Billa, аптека So pharmacy, както и редица други търговски обекти.
➡ ️ 'ГОЛД ИМОТИ' Ви предлага да се възползвате от професионално кредитно посредничество чрез Credit Center при ипотека, потребителски кредит и рефинансиране!
-УСЛУГАТА Е ИЗЦЯЛО БЕЗПЛАТНА!
-ИЗГОТВЯНЕ НА НЯКОЛКО ОФЕРТИ ОТ ВОДЕЩИ БАНКИ!
-НАЙ-ИЗГОДНИ УСЛОВИЯ СПРЯМО ВАШИЯТ ПРОФИЛ!
-НЕ Е НЕОБХОДИМО ДА СЕ РАЗКАРВАТЕ ВЪВ ВСЕКИ КЛОН НА РАЗЛИЧНИ БАНКИ!
➡ ️ Още атрактивни оферти може да намерите на нашия сайт: goldhome.bg
➡ ️ За повече информация и при интерес за оглед, моля свържете се с нас: 0894 274 966, 0896 706 299, 0899 125 189


