Посетена 4 пътиПубликувана в 14:21 на 25 Март 2026
Обща информация
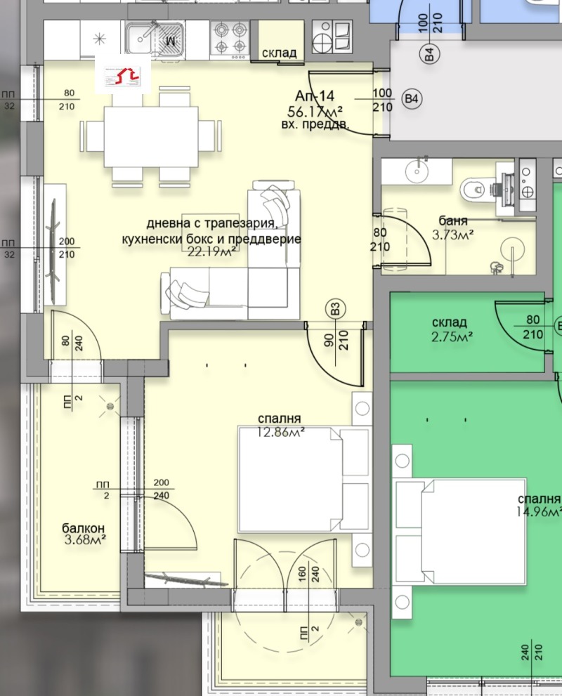
Квадратура67 m2
Етаж3-ти
Допълнителна информация
ПРЕД АКТ 15 -ДО КРАЯ НА МАЙ. АКТ 16 ДО ЛЯТОТО. ГЛЕДКА КЪМ ВИТОША.
ПРЕКРАСНО ИНВЕСТИЦИОННО ЖИЛИЩЕ , ПОДХОДЯЩО ЗА ОТДАВАНЕ ПОД НАЕМ, А СЪЩО ТАКА ЗА ПЪРВИ ДОМ НА МЛАДА ДВОЙКА. КАЧЕСТВЕНО СТРОИТЕЛСТВО ОТ ДОКАЗАН ИНВЕСТИТОР С МНОГО ВЪВЕДЕНИ В ЕКСПЛОАТАЦИЯ СГРАДИ. ОСИГУРЕНО БАНКОВО КРЕДИТИРАНЕ ЗА ИМОТА. МАЛКА БУТИКОВА СГРАДА, В НАЙ ХУБАВАТА ЧАСТ НА МАЛИНОВА ДОЛИНА , ДО АВТОБУСНА СПИРКА , ДО НОВАТА ДЕТСКА ГРАДИНА.
ТЕЛ. ЗА ОГЛЕДИ 0876989885, 0876068879
Особености
Тухла


