Продава 3-СТАЕН, град Стара Загора, Железник - център ID 88990232
Брокер
Обща информация
Допълнителна информация
БЕЗ КОМИСИОННА ОТ КУПУВАЧА!!!
ЦЕНИ НА ИНВЕСТИТОРА!!!
Линк към всички свободни апартаменти: https://t. ly/sUeZL
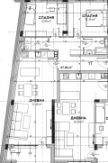
PS Property продава тристайни апартаменти, гаражи и паркоместа в модерна сграда със стилна фасада и луксозни общи части в кв. Железник.
Към всеки апартамент има мазе, включено в цената. Възможност за закупуване на гараж или паркомясто.
Акт 16 - 2025г.
Свободни апартаменти с различни площи, изложение, разпределение и етаж. Повече информация за наличности и актуални цени може да получите на посочените контакти!
Висококачествено строителство с безкомпромисно внимание към детайла, прецизно изпълнение и функционално разпределение. Издаване по БДС, висок клас PVC дограма и блиндирана входна врата.
В непосредствена близост се намират: училище, детска градина, спирки на градски транспорт, магазини и ресторанти!
PS Property предлага БЕЗПЛАТНА консултация и съдействие за отпускане на ипотечен или потребителски кредит, като услугата не е обвързана с покупка на имот!


