Брокер
Петя Личен телефон: 0887222477
Посетена 162 пътиПубликувана в 14:14 на 12 Август 2025
Обща информация
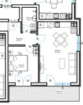
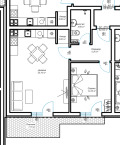
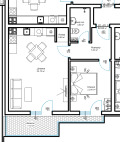
Квадратура54 m2
Етаж1-ви
Допълнителна информация
НОВА СГРАДА ДО ВСУ 'ЧЕРНОРИЗЕЦ ХРАБЪР'
ПРЕДПРЕМИЕРНИ ПРОДАЖБИ
Гъвкаво и разсрочено плащане /Запази своя имот сега
Представяме ви луксозен жилищен комплекс, разположен в близост до плаж Кабакум и непосредствено до ВСУ Черноризец Храбър .
Идеален както за целогодишно живеене, така и за инвестиция или ваканционен имот!
Основни предимства:
Луксозна нова сграда с модерна визия и висококачествени материали
Басейн в комплекса идеален за отдих и комфорт
Отлична локация тишина, зеленина и близост до морето и университета
Опция за външни и подземни паркоместа
Цени за двустайни апартаменти от 83 500 евро
Цени за тристайни апартаменти от 123 500 евро
реф. номер 13284
За повече информация :Петя Маринова 0887/222-477
Особености
В строеж • Асансьор • С паркинг • Интернет връзка • Контрол на достъпа • Саниран • Възможност за дан. кредит • Тухла
Страница на обявата
Брокер
Петя Личен телефон: 0887222477










