Брокер
Обща информация
Допълнителна информация
ЕКСЛУЗИВНО ОТ ' Купи в България' ви предлага за продажба просторен двустаен апартамент в един от най-търсените и добре уредени райони на Варна кв. Младост. Имотът се намира в модерна новострояща се сграда от доказан строител, в близост до магазини, училища, спирки на градски транспорт и парк.
Параметри:
Тип: двустаен апартамент - 76. 10кв. м.
Състояние: по БДС, с възможност за завършване до ключ
Етап: пред Акт 14
Опция за паркомясто
Разсрочено плащане според етапите на строителството
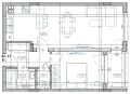
Разпределение:
Просторна дневна с кухненска част
Спалня с нормални размери
Баня с тоалетна
Входно антре
Килер / складово помещение
Тераса тип лоджия
Сграда и строителство:
Качествено строителство от доказана фирма с отлична репутация
Модерни общи части с луксозно изпълнение
Висококачествени материали и енергоефективни решения
Удобна и функционална архитектура
Предимства:
Предпочитан квартал Младост, с отлична инфраструктура
В близост до парк, училища, спирки и големи търговски вериги
Функционално разпределение и светли помещения
Възможност за довършване до ключ
Опция за паркомясто и разсрочено плащане
Подходящ както за живеене, така и за инвестиция
Отличен избор за нов дом в модерен жилищен комплекс с удобна локация и сигурна инвестиция във времето! ID 34152







