Брокер
Обща информация
Допълнителна информация
БИЛДИНГ БОКС представя сграда, която се отличава с просторни жилища с перфектно разпределение и високо качество на строителството, изпълнено от опитни професионалисти, които осигуряват сигурност и комфорт за бъдещите обитатели.
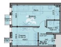
Имотът е двустаен и е със застроена площ от 57. 22 кв. м. Има следното разпределение: входно антре, дневна с кухненски бокс, спалня, баня с тоалетна и тераса. Изложението на имота е запад. Намира се на 5-ти етаж от общо 5. Отоплението е на газ, ще има изводи за климатици.
Жилищният комплекс е изпъкващ сред сградите в района с иновативен дизайн, модерна фасада и перфектни архитектурни решения. Ще предостави комфорт за бъдещите си собственици и всички необходими удобства за днешния градски живот. При изграждането на проекта ще бъдат използвани висококачествени материали и технологии.
Сградата е на изкоп и ще бъде завършена м. Октомври 2027г.
Местоположението на сградата е в непосредствена близост до спирки на градски транспорт, метро магазини и супермаркети, детски градини, училища, много зелени междублокови пространства. Локацията има бърз излаз до булевард ' Президент Линкълн' .
БИЛДИНГ БОКС предлага безплатна консултация и кредитно съдействие за финансиране на покупката на Вашия имот.
Оферта 26479






