Продава 2-СТАЕН, град Варна, Владислав Варненчик 1 ID 90077133
Брокер
Обща информация
Допълнителна информация
Агенция за недвижими имоти Lions Group предлага за продажба 2-стаен апартамент в новострояща се сграда, която се намира в кв. Владислав Варненчик.
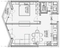
Имотът се състои от входно антре, баня с тоалетна спалня и дневна с кухненски бокс. Подходящ е, както за инвестиция, така и за отдаване под наем. Има възможност за закупуване на подземно паркомясто. Благоприятно източно изложение. Площта на жилището е 59кв. м, 1460 /кв. м.
Ще бъде издаден по БДС, като има възможност и за завършване ДО КЛЮЧ! Предвидени са и зелени площи около сградата.
В зависимост от избраната схема на плащане, може да се възползвате от до 7% отстъпка от крайната цена.
Има налични 1-стайни, 2-стайни и 3-стайни апартаменти.
За удобство на жителите в кв. Владислав Варненчик има поликлиника, училища, детски градини, парк, различни по вид магазини и големи търговски вериги. Кварталът се обслужва от множество автобусни линии, което осигурява достъп до всички части на града.
LIONS GROUP REAL ESTATE е единствената компания с online инвестиционен канал в ▶ ️ youtube‼
👉 Ако се интересувате от инвестиции в недвижими имоти🏘 , aбонирайте се за канала ни и получавайте знания📖 и информацияℹ , НАПЪЛНО БЕЗПЛАТНО‼ ️
Доверете се на над 1⃣ 0⃣ годишния ни опит в бизнеса с недвижими имоти, посредничество при сделки и инвестиране!
🌐 Линк към канала за ИНВЕСТИЦИИ В ИМОТИ: www.youtube. com/@Инвестициивимоти
За повече информация и огледи: 0888 393 222
Реф. : 14727
Брокер: Виктория Петрова
Цена на имота: 85 990
Район: Владислав Варненчик
Етаж: 3



