Продава 2-СТАЕН, град Пловдив, Христо Смирненски ID 90157243
Брокер
Обща информация
Допълнителна информация
🚀 ОТ ИНВЕСТИТОР БЕЗ КОМИСИОНА!
✨ Най-висок клас строителство в една от най-престижните локации в Пловдив! Този просторен двустаен апартамент предлага всичко необходимо за съвременния градски живот, с акцент върху качество, комфорт и енергийна ефективност.
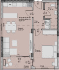
🏡 Апартаментът предлага:
🛋 Просторна дневна с кухненски бокс идеална за социализиране и релакс, с големи прозорци за изобилие от светлина
🛏 Спалня уютно и спокойно място за почивка
🛁 Баня с тоалетна луксозни довършителни работи с внимание към детайлите
🌞 Тераса с източно изложение, предлагаща прекрасна гледка и много естествена светлина през целия ден
🌟 НАЙ-ВИСОК КЛАС СТРОИТЕЛСТВО:
🧱 Тухла Винербергер най-доброто за звуко- и топлоизолация
🪟 7-камерна дограма с троен стъклопакет оптимална енергийна ефективност и шумоизолация
🌿 Изолация с каменна вата устойчивост на всякакви климатични условия
🏗 Окачена фасада за естетика и защита на сградата
📍 Локация: Отлична, в сърцето на кв. Христо Смирненски, близо до парк, училища, болници и магазини. Бърз достъп до основни пътни връзки.
📅 Срок на завършване: 2028 г.
💰 Гъвкави условия на плащане адаптирани към нуждите на клиента
🚗 Възможност за закупуване на паркоместа и гаражи
🏦 Подходящ за покупка с ипотечен кредит съдействие без допълнителни такси
✅ Директна продажба от инвеститор без комисионна! Имот 6524






