Обща информация
Допълнителна информация
Оферта 5801533
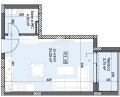
ЕРА Вива има удоволствието да Ви предложи чудесна възможност за инвестиция в луксозна новострояща се сграда в кв. Тракия! Жилището е с обща площ от 45, 53 кв. м, и се състои от дневна с трапезария и кухненски бокс с площ от 24, 43 кв. м, голяма баня с тоалетна с площ от 4. 30 кв. м и просторна тераса с крадратура от 3, 75 кв. м.
Луксозна сграда, с отлична локация. В непосредствена близост до множество търговски обекти. Изградена инфраструктура, осигуряваща бърз достъп до всяка точка на града. Изключително подходящо за инвестиция.
ГЪВКАВИ СХЕМИ НА ПЛАЩАНЕ.
Инвестицията в недвижим имот е най- сигурният начин да съхраним парите си от инфлационно обезценяване. Направете го сега.
ЕРА България е регистриран кредитен посредник към БНБ и предоставя безплатна консултация и съдействие за най-изгодни условия спрямо вашия профил и желание при финансиране на избрания от Вас имот.
Оферта 5801533


