Брокер
Обща информация
Допълнителна информация
Unique Estates Ви представя светъл двустаен апартамент за продажба в кв. Кръстова вада - един от най-динамично развиващите се райони на София, съчетаващ съвременно строителство, отлична инфраструктура и спокойна жилищна среда.
Локацията осигурява бърз достъп до основни пътни артерии, търговски обекти, метро и градски транспорт, като същевременно запазва уюта и тишината на района.
Имотът е част от нов модерен комплекс с етапно строителство, като вече завършените сгради дават ясна представа за високото качество на изпълнение и довършителните работи. Проектът се отличава с красиво озеленен вътрешен двор и луксозни общи части. Сградата е на етап Акт 14, като Акт 16 се очаква в началото на 2027 г.
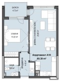
Апартаментът е разположен на трети етаж, с източно изложение и гледка към вътрешния двор. Намира се в самостоятелна сграда извън затворената част на комплекса, което създава допълнително усещане за комфорт и спокойствие.
Жилището е с чиста площ от 69 кв. м. и разполага с просторна дневна с кухненски бокс, спалня, баня с тоалетна и двор. Функционалното разпределение, добрата площ и атрактивната локация правят имота отличен избор както за лично ползване, така и за сигурна инвестиция с добра доходност.
Към апартамента има възможност за закупуване на паркомясто или гараж на цени от 25 000 евро без ДДС.
В комплекса предлагаме и други налични апартаменти с различна площ, изложение и етап на завършеност.
Жилището е с функционално разпределение и включва дневна с кухненски бокс, спалня, баня с тоалетна, предверие и двор Цената е без включен ДДС. Ref. ID:28726

















