Продава 2-СТАЕН, град София, Люлин - център ID 90802970

129 465 €253 211.53 лв.Цената е с включено ДДС

Агенция

БИЛДИНГ БОКС, град София
БИЛДИНГ БОКСград София София ЕИК207674103

Брокер

БИЛДИНГ БОКС Личен телефон: 0877734412
Посетена 3 пътиПубликувана в 15:41 на 21 Октомври 2025

Обща информация

Квадратура92 m2
Етаж5-ти

Допълнителна информация

ПРЕД РАЗРЕШЕНИЕ ЗА СТРОЕЖ! МЕТРО! 1650 е/кв. м. !

БИЛДИНГБОКС предлага за продажба страхотен тристаен апартамент в сграда, която предстои да бъде започната - на 300м. от метростанция ' Люлин' .

Сградата е пред разрешение за строеж и има само 5 свободни апартамента, включително с този.

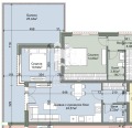
Апартамента е светъл, с две изложения - север и запад. Намира се на 5-ти етаж от общо 5. Застроената му площ е 78. 03 кв. м. ; 92, 34 кв. м. с общи части.

Състои се от две спални, просторна дневна с кухненски бокс, антре, баня с тоалетна и балкон.

Имате възможност и за покупка на паркомясто или гараж.

Отоплението ще е на климатици.

БИЛДИНГ БОКС Ви предлага безплатна консултация и кредитно съдействие за финансиране на покупката на Вашия имот.
Оферта 26211

Особености

Тухла

Страница на обявата

Агенция

БИЛДИНГ БОКС, град София
БИЛДИНГ БОКСград София София ЕИК207674103

Брокер

БИЛДИНГ БОКС Личен телефон: 0877734412

Споделяне

Преглeд на обявите по населени места: