Обща информация
Допълнителна информация
БЕЗ КОМИСИОННА ОТ КУПУВАЧА !!!
ДИРЕКТНО ОТ ДОКАЗАН ИНВЕСТИТОР!!!
Агенция АМВ КОМЕРС ЕООД има удоволствието да представи на вашето внимание чудесен тристаен апартамент със страхотно изложение в сграда с предстоящо строителство в един от най - бързо развиващите се квартали в София.
Сградата ще бъде на изключително комуникативно място, непосредствено до бул. Владимир Вазов и метростанция , спирки на градския транспорт, както и на пешеходно разстояние от БИЛА, ФАНТАСТИКО и с лесен и бърз достъп до всяка част на града.
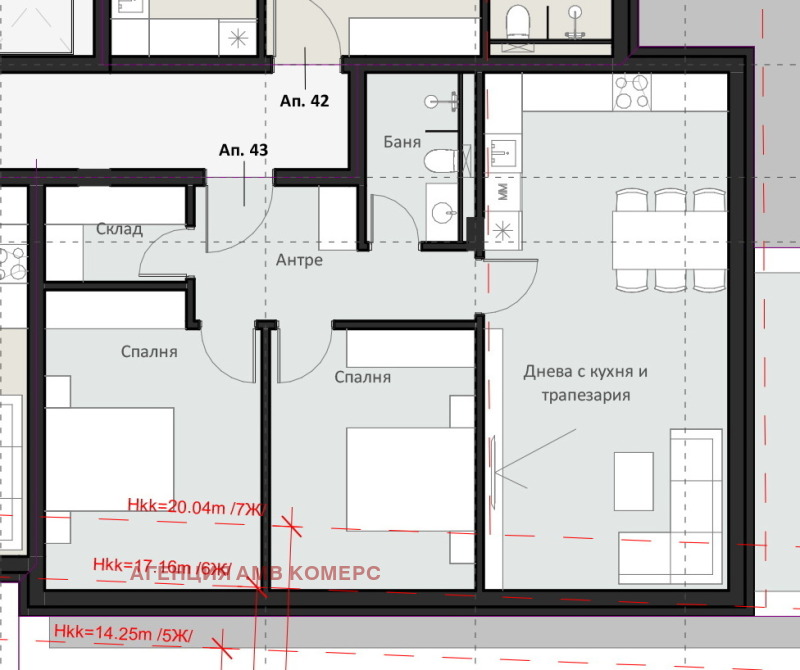
Предлаганият имот е със застроена площ от 118. 26 кв. м. и с отлично разпределение : антре, просторна дневна с кухненски бокс, родителска спалня, детска стая, баня с тоалетна , склад и тераса.
Жилището се продава на разсрочено плащане, спрямо достигнатия етап на строителство или с банков кредит , като за момента само със СТОП КАПАРО.
В сградата се предлагат и подземни паркоместа на цена от 20 000 евро.
Ако се интересувате от отличен имот за живеене или за инвестиция, моля обадете се - 0895235555 - Валентина Георгиева , 0886032696 - инж. Тони Родева.



