Брокер
Обща информация
Допълнителна информация
НОВА СГРАДА, РАЗСРОЧЕНО ПЛАЩАНЕ ПО ВРЕМЕ НА СТРОИТЕЛСТВОТО, ВЪЗМОЖНОСТ ЗА ЗАКУПУВАНЕ НА ОТКРИТО/12000 евро/ ИЛИ ЗАКРИТО/17000 евро/ ПАРКОМЯСТО
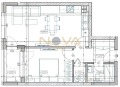
Нова Хоум Недвижими Имоти представя на Вашето внимание слънчев двустаен апартамент в кв. Младост. Жилището се състои от просторен дневен тракт с кухненски кът-24 кв. м. , спалня-12 кв. м. , лоджия към двете стаи, баня с тоалетна, килер/перално помещение и широко входно антре.
Сградата ще разполага с 10 жилищни етажа и един подземен, предназначен за паркинг и складови помещения. Жилищните площи са проектирани и съобразени спрямо нуждите на различните типове домакинства.
ЖИЛИЩАТА ЩЕ БЪДАТ ЗАВЪРШЕНИ ПО БДС:Изградени ВиК и Ел. инсталации, монтирани ключове, контакти и входна блиндирана врата, изграден тръбен път за климатици, стени на шпакловка и под на замазка.
СХЕМА НА ПЛАЩАНЕ:
При предварителен договор: 50%
При издаване на Акт 14: 20%
При поставяне на дограма: 10%
При положена фасада на сградата:10%
При издаване на Акт 16: 10%
Нова Хоум съдейства на своите клиенти до нотариалното изповядване на сделката, за отпускане на кредит с преференциални условия към всички водещи банки на пазара, както и за ремонтни и довършителни дейности /завършване до ключ/ на преференциални цени.
За повече информация и огледи: Галина Петрова +359 878 66 79 66




