Посетена 1 пътиПубликувана в 11:44 на 05 Ноември 2025
Обща информация
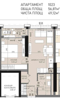
Квадратура57 m2
Етаж9-ти
ТEЦДА
Допълнителна информация
Предлагаме 2-стаен апартамент за продажба в един от най-мащабните комплекси в София - Central Park.
Висококачествено строителство, луксозни общи части, контрол на достъпа, видеонаблюдение, асансьори от висок клас.
В близост има супермаркет Kaufland, кафенета, спирки на градския транспорт, метростанция Княгиня Мария Луиза.
Обща площ: 57 кв. м.
Чиста площ: 49 кв. м
Възможно закупуване на гараж или паркомясто.
За повече информация и оглед обадете се.
Тел: +359886871460
Особености
Тухла









