Брокер
Обща информация
Допълнителна информация
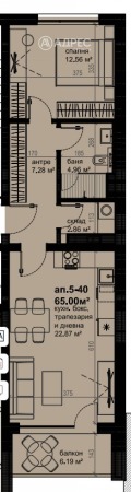
Предлагаме за продажба двустаен апартамент в ж. к. Изгрев, сграда 5, ет. 9. Две изложения - Югоизток и северозапад.
Имота се състои се от входно антре, всекидневна с кухненски кът и трапезария, една спалня, баня с тоалетна, склад/мокро помещение и тераса.
Комплексът ще се състои от 10 жилищни секции, като в продажба за момента са секции 3, 4, 5. Под тях са разположени две нива сутерени с паркоместа и допълнителни складове/мазета.
Предвидени са редица удобства: зелени площи над 6 дка, или повече от 35% от територията на комплекса, места за отдих, детска площадка, многофункционални спортни площадки, фитнес на открито, алея за бягане, зона за домашни любимци и други.
Проектиран с внимание към всеки детайл, комплексът предлага отлична среда на живот за всеки, който търси баланс между съвременния начин на живот и спокойствието.
Идеални планировки за всяко семейство от студиа, апартаменти с една, две или три спални до апартаменти с дворове и луксозни пентхауси. Всяко жилище е проектирано с мисъл за Вашето удобство. Множество варианти на планиране, които могат да отговорят на нуждите на всеки човек и всяко семейство.
Имотите се издават в степен на завършеност на тапа (шпакловка и замазка)
Срок на строителство 36 месеца от издаване на разрешението за строеж за целия комплекс (предвидено старт на строителството септември 2025)
Атрактивни Цени от 1244 /кв. м до 1293 /кв. м.
Официален план на изплащане:
5000 евро депозит при сключване на договор за депозит
1 вноска 40% при сключване на предварителен договор до 10 (десет) дена от получаване на разрешението за строеж.
2 вноска 30% при достигане на кота . .. .. (плоча на етажа, на който е разположен имота).
3 вноска 20% при получаване на Акт 14.
4 вноска 10% при получаване на Акт 16.
Планираната такса поддръжка ще е:
9, 36 лева с ДДС за кв. м. обща площ за самостоятелен обект - годишно.
8, 88 лева с ДДС за паркомясто на месец.
Основни характеристики:
Елегантна архитектура с модерна визия
Паркова зона за отдих и релакс
Спорт на открито - многофункционално игрище, алеи за бягане и фитнес на открито
Специални детски кътове както в парковата част.
Търговски площи с магазини, заведения и услуги
Медицински център на територията
Зона за домашни любимци
24/7 видеонаблюдение и контрол на достъпа
Подземен и надземен паркинг
Професионална поддръжка на сградите
Жилища с различна квадратура, подходящи за всякакви нужди
Обади









