Продава 2-СТАЕН, град София, Малинова долина ID 91583368
Брокер
Обща информация
Допълнителна информация
ДВУСТАЕН АПАРТАМЕНТ С ВКЛЮЧЕНО ПАРКОМЯСТО В ЦЕНАТА!
Консултант недвижими имоти:Йорданка Петрова 0886 242513
Cloud Homes недвижими имоти представя Двустаен Апартамент с Включено Паркомясто в цената, в новострояща се сграда в кв, 'Малинова долина'.
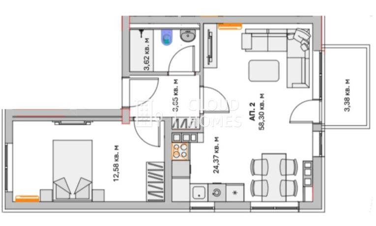
Апартаментът се състои от: Входно Антре, Дневна с Кухненски Бокс и Трапезария, Спалня, Тераса, Баня с WC, Мазе, Паркомясто! Изложението е Югоизток!
Модерна и Стилна Сграда!. Апартамента е Идеален за живеене, както и за инвестиция. Отоплението е на Електричество!
Локацията е кв. 'Малинова долина', в близост до Бъдещата Метростанция, до'Кауфланд' и 'Фантастико', до Нова Детска Градина, в близост до Симеоновско шосе и др.
Имотът се издава съгласно БДС: Екстериорна блиндирана врата. Под : нивелирана замазка подготвена за полагане на гранитогрес, паркет или настилка по Ваш избор. Стени : машинно обработена гипсова мазилка с турбозол подготвена за боя или тапет по ваш избор. Мокри Помещения : ръчно обработена циментова мазилка подготвена за полагане на фаянс и теракота . ВиК инсталация на тапа. ЕЛ инсталация : контакти, ключ и фасонки, Вентилационна инсталация, Мълниезащитна инсталация, ПВЦ дограма, Общи части в напълно завършен Вид. Опция за завършване до Ключ!
Строителство: Висококачествено Ново Строителство!.
Сградата: Луксозни общи части!. Домофона система за контролиран достъп в сградата.
Cloud homes може да съдейства за осигуряване на възможно най-добри условия по усвояване на средства по ипотечни кредити за покупка на недвижим имот. Разполагаме с контактите на опитен адвокат, кредитен консултант, архитект, геодезист, ремонтна бригада и интериорен дизайнер, които могат да помогнат и разрешат всички специфични въпроси, които биха възникнали по време на всяка сделка. Огледите се провеждат между 10:00 и 18:00ч в делнични дни с предварителна уговорка. За повече информация и при желание за оглед, не се колебайте да се свържете със водещия брокер по обявата Йорданка Петрова 0886 242513

