Продава 2-СТАЕН, град Пловдив, Христо Смирненски ID 91639359
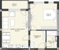
Обща информация
Допълнителна информация
Имот, който заслужаваш!
Продажба от Агенция РЕВИСТА:
📙 Тип имот: двустаен апартамент;
📙 Строителство: Тухла. С Акт 16.
📙 Етаж: 2 от 11;
📙 Изложение: Северозапад;
📙 Паркинг: С ОПЦИЯ ЗА ЗАКУПУВАНЕ НА ПОДЗЕМНО ПАРКОМЯСТО или Гараж;
📙 Площ с общи части: 83, 85 кв. м. ;
📙 Разпределение: дневна с трапезария и кухненски бокс, спалня, баня+WC, тераса;
📙 Състояние: ШЗ,
📙 Локация: кв. Хр. Смирненски. В непосредствена близост се намират училища, детски градини и магазини - Mall Plovdiv, Гребна база и др.
💳 Кредит център. Оказваме пълно съдействие при необходимост от ипотечно кредитиране. Работим с над 10 водещи банки и съдействаме за избор на най-добрите условия според профила и нуждите на клиента.
🌎 Сайт: https://revista.bg
🏢 Офис: бул. Пещерско шосе, 76, партер
* Настоящата обява има информативен характер и представлява покана за преговори по смисъла на закона, без да обвързва продавача с окончателни условия. Цената се уточнява при запитване и може да варира в зависимост от параметрите на сделката и решението на собственика. Всички разходи по сделката, включително местни данъци, нотариални такси и възнаграждение за посредничество, не са включени в посочената цена, освен ако изрично не е посочено друго.
















