Обща информация
Допълнителна информация
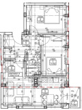
DOMERA представя тристаен апартамент с отлично разпределение и функционална вътрешна организация, разположен в нова модерна сграда с ограничен брой жилища.
Обща площ: 85, 64 кв. м.
Разпределение:
Дневна с кухненски бокс
2 Спални
Баня
Склад
Коридор
Тераса
Апартаментът предлага ясно обособена дневна и нощна зона, което осигурява комфорт и функционалност в ежедневието. Дневната част е с правилна форма и позволява удобно позициониране на кухня, трапезария и холен кът. Пространството е добре осветено и дава усещане за въздух и простор.
Двете спални са самостоятелни, с удобни размери и възможност за стандартно обзавеждане без компромис. Банята е с практична конфигурация, а наличието на склад е допълнително предимство при реално ползване.
Терасата осигурява излаз от дневната зона и допълва комфорта на жилището.
Имотът е част от 6-етажна сграда със сутерен и общо 19 апартамента, което гарантира спокойна среда, по-ниско натоварване на общите части и добра дългосрочна ликвидност.
Подходящ за:
Семейно жилище
Инвестиция
Отдаване под наем
Този тип тристайни апартаменти с компактна, но ефективна площ са сред най-търсените в новото строителство, поради баланса между функционалност и разумен бюджет.
Цената е без ДДС
DOMERA
Built on Value


