Брокер
Обща информация
Допълнителна информация
HOLDING GROUP REAL ESTATE Ви представя къща за продажба в гр. Варна, кв. Виница ново строителство 2025 г. Модерен дом с внимание към детайла и комфорт за цялото семейство. Перфектен баланс между спокойствие, зеленина и бърз достъп до градската инфраструктура. Имотът впечатлява с функционално разпределение, качествени материали и уютни вътрешни и външни зони за релакс. Панорамна гледка море.
- Локация: Варна, кв. Виница
- Година на построяване: 2025
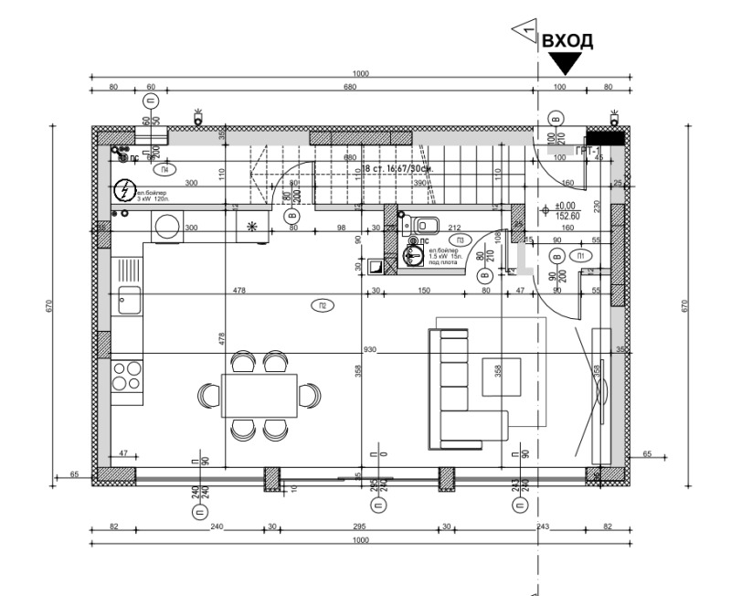
- Обща площ: 174 кв. м
- Цена: 390 000
- Просторна дневна с кухня и трапезария светла и удобна за семейни събирания
- 3 самостоятелни спални
- 2 бани + тоалетна за гости
- Перално/складово помещение и практична гардеробна зона
- Частен двор и слънчева тераса идеални за барбекю и почивка
- Паркоместа/възможност за гараж
- Отлично изложение и големи прозорци за максимална светлина
- Висок клас фасадна топлоизолация
- Енергийно ефективна дограма
- Подово отопление и подготовка за термопомпа/климатизация
- Смарт окабеляване, интернет оптика, СОТ подготовка
-По желание има възможност за изграждане на фотоволтаична система на цена 15000 евро
- Рационално разпределение, оптимизирани площи и удобни комуникации
- Спокойна улица с бърз достъп до центъра и морето
Тази къща съчетава модерна архитектура и практичност, осигурявайки усещане за простор и уют. Подходяща е за семейства, които търсят качествено ново строителство, тишина и зеленина, без да правят компромис с близостта до градски удобства. Възможност за довършителни решения спрямо вашия вкус. За квартала:
- Виница е зелен и спокоен район с ниско застрояване, чист въздух и приятна жилищна среда, предпочитан от семейства.
Ако имота ви интересува, цитирайте код: 7755




