Брокер
Обща информация
Допълнителна информация
ДВУСТАЕН АПАРТАМЕНТ С ВЕРАНДА
ЕЙЧ ЕЙЧ Пропърти предлага двустаен апартамент в новия жилищен комплекс в новата част на кв. Прослав - бутиков проект с ниско строителство, състоящ се от 4 сгради на 4 етажа, с по 3 апартамента на етаж, осигуряващ спокойна и уютна жилищна среда.
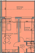
Имотът е на кота 1, 20м, разположен в сграда 2, с площи както следва:
Обща площ апартамент - 57, 65 кв. м
Чиста площ апартамент - 48, 77 кв. м
Веранда към апартамент - 19, 83 кв. м
Отделна изба на ниво сутерен - 5. 35 кв. м
Изложение - Изток
Разпределение:
дневна с кухненски бокс, спалня, баня с тоалетна и веранда.
Комплексът предлага подземно и надземно паркиране, зони за отдих и детска площадка, което го прави отличен избор за семейно жилище или инвестиция.
Локация с удобен достъп на пешеходно разстояние от детска градина, хипермаркети и автобусна спирка.
Очакван Акт 16 края на 2027 г.
📞 За повече информация:
Ангел Катушев 0897 080 399
ЕЙЧ ЕЙЧ Пропърти




